Trastero en ALMENDRALEJO

Visitas: 5 · ALMENDRALEJO · Badajoz

📅 Procesada hace 10 meses
Trastero en ALMENDRALEJO imagen 1
1 / 7
⏰ Finalizada

Finalizó hace 9 meses

Valoración inicial: 1027,00 €

Valor actual de la puja: 102,78 €-90%

Descripción

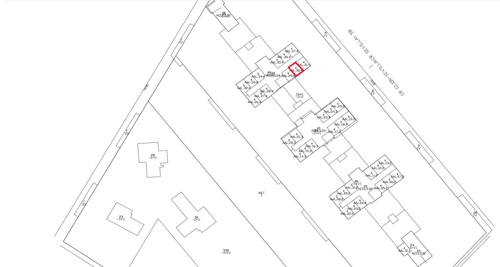
100% DEL PLENO DOMINIO DE LA URBANA. - CUARTO TRASTERO EN PLANTA BAJO CUBIERTA DEL PORTAL 4 DEL BLOQUE 1, SEÑALADO CON EL NÚMERO 30. SUPERFICIE ÚTIL DE 4,05 M2. LINDA: DERECHA, TRASTERO Nº 29 IZQUIERDA, TRASTERO Nº 31 FONDO, CUBIERTA DEL EDIFICIO. LA CUOTA DE PARTICIPACIÓN CON RELACIÓN AL BLOQUE: 0.05% Y EN RELACIÓN AL CONJUNTO: 0.03%.

Más información sobre esta subasta

Esta subasta pública incluye pisos, casas, trasteros, garajes y solares embargados. Aprovecha la oportunidad de pujar online de forma segura y conocer los detalles de cada bien subastado.

Consulta todas las subastas en nuestra web para encontrar subastas de inmuebles, pisos, casas y solares en distintas provincias y municipios. Mantente informado sobre los precios iniciales, valoraciones y estado de cada subasta.

Subastas relacionadas

Explora más subastas